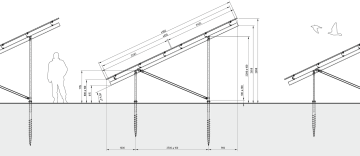
Groundfix 2V Rafters groundscrew

Attaching the legs to the ground screw allows the height of the structure to be adjusted



Fastening panels to longitudinal profiles

The solution for adjusting the slope of the rafters and optimal placement of the struts

Features:
Placement of panels on the structure – 2 panels vertically.
Construction for standard FVE panel tilt range 10°–35°
The structure is height adjustable and can levelized uneven terrain
Certified screws of the brand BAYO.S
The rafter construction allows the use of different panel sizes
Easy and quick installation
All construction elements hot-dip galvanized according to DIN EN ISO 1461
The construction is according to ČSN EN 1990
Weight of 1 MW approx. 30 t
Made in Czech Republic