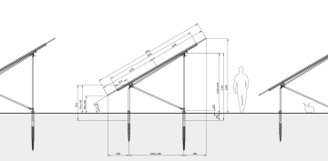
Groundfix 2V Slide-in groundscrew

Attaching the legs to the ground screw allows the height of the structure to be adjusted


Fixing the solar panel in aluminum profiles – Slide-in

Attaching the bottom brace and the aluminum profile to the purlin, which determines the tilt of the panels

Features:
Placement of panels on the structure – 2 panels vertically.
The optimal solution in terms of land utilization.
Construction for standard FVE panel tilt range 10°–35°
The structure is height adjustable and can levelized uneven terrain
Certified screws of the brand BAYO.S
Slide-in mounting of panels using a special aluminum profile. The panel is supported up along its entire length, it does not deform. Easy and quick installation. Slide-in profiles of different cross-sections T85/T100/T125, AW6063 according to TS EN 775-9
for different types of loads are provided.
All construction elements hot-dip galvanized according to DIN EN ISO 1461
The construction is according to ČSN EN 1990
Weight of 1 MW approx. 30 t
Made in Czech Republic